2024年1月12号,江西守正工程管理有限公司开展了关于建筑面积的定义及计算规则的公开学习课,此次课程由造价部同事谢心成授课,造价部门全体及其他相关人员参与学习听讲。
本次学习课程主要内容通过以下方面来讲解。
一、建筑面积的定义:建筑面积是指建筑物(包括墙体)所形成的楼地面面积(也就是我们通常说的外墙外边线所围的一圈面积)。建筑面积主要是墙体围合的楼地面面积(包括墙体的面积),因此计算建筑面积时,先以外墙结构外围水平面积计算。建筑面积包括附属于建筑物的室外阳台、雨篷、檐廊、室外走廊、室外楼梯的面积。
二、建筑面积的分类:建筑面积可分为使用面积、辅助面积、结构面积。
1、使用面积:是指建筑物各层平面布置中,可直接为生产或生活使用的净面积总和。居室净面积在民用建筑中也称为“居住面积”。例如住宅建筑中的居室、客厅、书房等。
2、辅助面积:是指建筑物各层平面布置中为辅助生产或生活所占净面积的总和。例如:住宅建筑的楼梯、走道、卫生间、厨房等。使用面积与辅助面积的总和称为“有效面积”。
3、结构面积:是指建筑物各层平面布置中的墙体、柱等结构所占面积的总和(不包含抹灰厚度所占面积)
三、建筑面积又可分为:套内面积、公摊面积、套内墙体面积。即对于购房来说,选择户型时要注意公摊面积的多少,扣除公摊才是你实际使用的面积。结合下图理解:

四、建筑面积的作用:
1、是确定建设规模的重要指标。根据项目立项批准文件所核准的建筑面积是初步设计的重要控制指标。对于国家投资项目,施工图的建筑面积不得超过初步设计的5%,否则必须重新报批。
2、是确定各项技术经济指标的基础。建筑面积与使用面积、辅助面积、结构面积之间存在着一定的比例关系。有了建筑面积,才能确定每平米建筑面积的工程造价和其他技术经济指标。
3、是评价设计方案的依据。建筑设计和建筑规划中,经常使用建筑面积控制某些指标,比如说容积率、建筑密度、建筑系数等。在评价设计方案时,通常采用居住面积系数、土地利用系数、有效面积系数、单方造价等指标,它们都与建筑面积密切相关。
4、是计算有关分项工程量的依据。在编制一般土建工程预算时,建筑面积是确定一些分项工程量的基本数据。应用统筹计算方法,根据底层建筑面积,就可以很方便地推算出室内回填土体积、楼地面面积和顶棚面积,另外,建筑面积也是脚手架、垂直运输机械费费用的计算依据。
5、是选择概算指标和编制概算的基础数据。概算指标通常是以建筑面积为计量单位。用概算指标编制概算时,要以建筑面积为计算基础
五、计算建筑面积的规定:
取定建筑面积的顺序为:有围护结构的,按围护结构计算面积;无围护结构、有底板的,按底板计算面积(如室外走廊、架空走廊);底板也不利于计算的,则取顶盖(如车棚、货棚);主体结构外的附属设施按结构底板计算面积。
(一)具体规则
1、建筑物的建筑面积应按自然层外墙结构外围水平面积之和计算。结构层高在2.2m及以上(≥2.2m)的应计算全面积,在2.2m以下的,应计算1/2面积。这
2、建筑物内设有局部楼层时,对于局部楼层的二层及以上楼层,有围护结构的应按其围护结构外围水平面积计算,无围护结构的应按其结构底板水平面积计算且结构层高在2.2m及以上的计算全面积,结构层高在2.2m以下的计算1/2面积。

3、形成建筑空间的坡屋顶,结构净高在 2.1m 及以上的部位应计算全面积;结构净高在 1.2m 及以上至2.1m 以下的部位应计算 1/2 面积;结构净高在 1.20m 以下的部位不应计算建筑面积。

4、阳台建筑面积应按围护设施外表面所围空间水平投影面积的1/2计算;当阳台封闭时(即在主体结构内),应按其外围护结构外表面所围空间的水平投影面积计算。
判断阳台是在主体结构内还是在主体结构外是计算建筑面积的关键。可按以下原则进行判断:
1)砖混结构。通常以外墙来判断,外墙以内为主体结构内,外墙以外为主体结构外。
2)框架结构。柱梁体系之内为主体结构内,柱梁体系之外为主体结构外。
3)剪力墙结构。分为以下几种情况:
①如阳台在剪力墙包围之内,则属于主体结构内。
②如相对两侧均为剪力墙时,也属于主体结构内。
③如相对两侧仅一侧为剪力墙时,属于主体结构外。
④如相对两侧均无剪力墙时,属于主体结构外。
即在确定建筑面积时,围护结构优于底板,底板优于顶盖。所以有盖无盖不作为计算建筑面积的必备条件,如阳台、架空走廊、楼梯是利用底板。
5、有柱雨篷应按其结构板水平投影面积的 1/2 计算建筑面积;无柱雨篷的结构外边线至外墙结构外边线的宽度在 2.10m 及以上的,应按雨篷结构板的水平投影面积的 1/2 计算建筑面积。
六、建筑面积的计算运用。
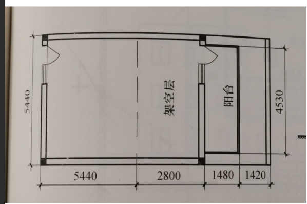
例题1:单层建筑层高超过2.2m,请计算其建筑面积。
解:
单层建筑的建筑面积=5.44X (5.44+2.80) =44.83㎡
阳台建筑面积=1.48X (4.53/2) = 3.35㎡
例题2:若局部楼层结构层高均超过2.2m,请计算建筑面积。

解:
首层建筑面积=50X10=500㎡
局部二层建积(按围护结构算)=5.49X3.49=19.16㎡
局部三层建筑面积(按底板计)=(5+0.1) X (3+0.1)=15.81㎡
通过此次培训建筑面积的定义及计算规则的造价分享课程,让大家对如何计算建筑面积有了更清晰的理解。对于往后这部分的内容可以更好地运用。
吉安县指阳乡禾河观光旅游景区工程于11月05日正式开工,计划2月1日正式投入使用。截止到目前所有一期施工范围内的房屋外脚...
凤凰中学综合楼项目位于吉安县凤凰中学校内,在拆除破旧食堂及附属危房的基础上,新建一栋五层(含地下一层)综合楼,项目占地面...
公司拥有房屋建筑工程和市政公用工程监理乙级资质,有注册监理工程师4人,其中高级工程师1人,中级工程师3人。本着技术、能力...
1.协助业主进行项目前期策划、经济分析、专项评估与投资确定;2.协助业主方办理土地征用,规划许可等有关手续;3.协助业主...